These pre-approved plans may be used for a primary house, secondary, or cottage housing.
To encourage housing, the City has developed pre-approved construction plans. Each of the plans is designed to be less than 900 square feet (SF).
There are four layout options, each with two different exterior styles – modern or traditional. To get started follow each of the steps below.
Questions can be directed to planning@col.dev.3sherpas.com.
Leavenworth has four pre-approved designs. When reviewing designs think about the overall space available on your property including setback requirements, lot coverage, and one additional parking space required for this size dwelling. The Site Plan overview can provide some guidance.
When you’re ready to proceed, connect with the designer to begin the licensing process.
Connect with the designer to license your preferred plan.
Prepare your Site Plan or ask your designer to help you with this step.
Review the Residential Building Permit Requirements, and then fill out the building permit and indicate that you are submitting pre-approved plans, see Building Permit Application.
Ask if your project will require other permits, including but not limited to, driveway, water/sewer, right-of-way.
Good news! By choosing a pre-approved design, the permitting process streamlined. You can generally expect your building permit within a few weeks.
Once the review is complete and you have paid your permit fee, the building permit will be issued and you can begin construction.
Pre-Approved Housing Plans
Alpine – 1 bed, 1 bath 455 SF
At 455 SF, ALPINE provides an efficient living space with a single bedroom and full bath.
This design includes an open kitchen, dining, and living space and a covered entry porch.
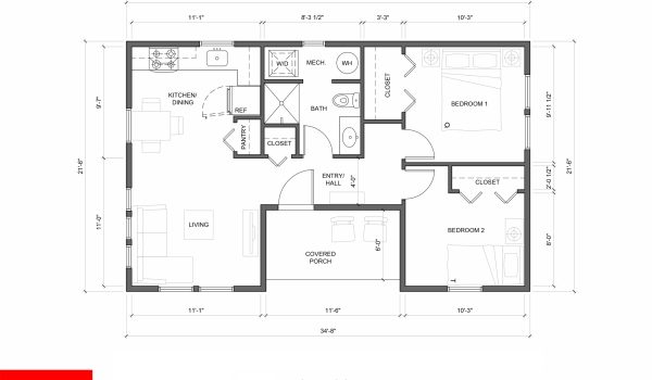
Maple – 2 bed, 1 bath 665 SF
At 665 SF, MAPLE is a two-bedroom cottage consisting of a central entry porch with an open functional living space on one side and sleeping spaces on the other, separated by the utility core. This design features both a large and small bedroom, each containing a full-size closet. It provides full amenities and storage in a condensed, efficient footprint.
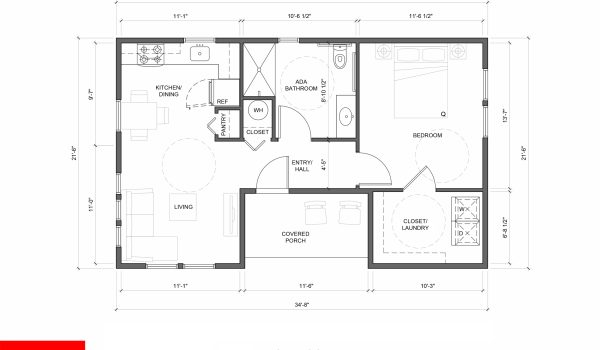
Juniper – 1 bed, 1 bath (Maple appearance reconfigured to be ADA accessible) 665 SF
JUNIPER (ADA) is a 665 SF one-bedroom accessible unit is based on the same footprint and structure as the Maple. It contains a single bedroom, and a bathroom designed for ease of circulation and larger clearances around fixtures and bedroom furniture. Featuring an open kitchen, dining, and living area and a full walk-in closet with washer & dryer, this design is flexible and economical.






















